
Stairs
At Hatch Detailing we model stairs using Advance Steel, we produce CAD models, GA's and fabrication packs to make the experience as seamless as possible.

Railings
We offer high-quality architectural steelwork detailing services using Autodesk Advance Steel, architectural steel elements such as balustrades, canopies, feature staircases, screens, and decorative framework.

Balconies
Balcony detailing is a critical aspect of architectural design and steel detailing, ensuring both functionality and safety within a building. At Hatch Detailing, we focus on creating precise fabrication drawings for balconies, from single designs to wrap around based on detailed architectural and structural plans.

Stepovers
Stepovers come in a variety layouts, we can design exactly what you require and provide assistance with site surveying if required.

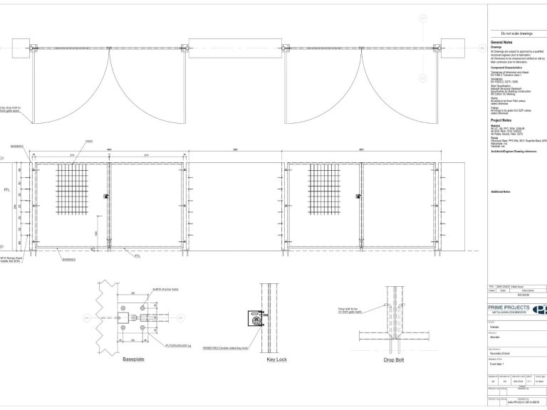
Gates
If you require gates, we can design, model and create fabrication drawings to suit your needs. You can send over sketches and drawings to give us a rough idea of what you require and we will do the rest.

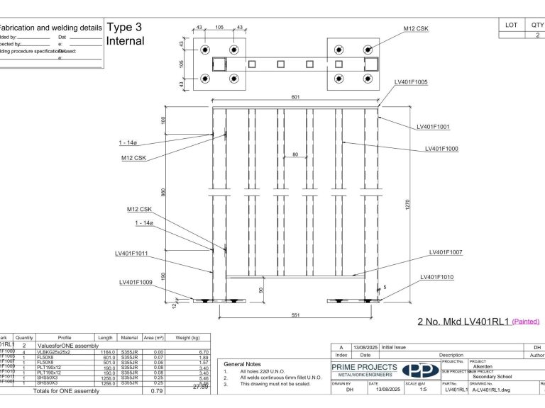
Fabrication Packs
Fabrication packs are one of the most important parts of the design process, to make sure the project runs smoothly the pack that is provided needs to be filled with information to make sure the manufacture has all the information they require to make sure everything is made correctly. We supply part PDF's, NC files, DXF files and bill of material lists, this information allows the manufacture make sure the process runs a smoothly without issues.

Portal Frames
For agricultural, industrial, or commercial builds – from machinery sheds to storage units. Designed for projects that need open spans and practicality
